So wohnt man im Kreuzviertel

Altbau im Kreuzviertel – ca. 147 m², Jugendstil, Loggia. Mehr braucht man eigentlich nicht sagen.
In begehrter Lage des Kreuzviertels befindet sich diese großzügige Wohnung im 3. Obergeschoss eines repräsentativen Jugendstilhauses. Das Gebäude überzeugt durch seine eindrucksvolle Architektur und eine sehr gepflegte Außenfassade.
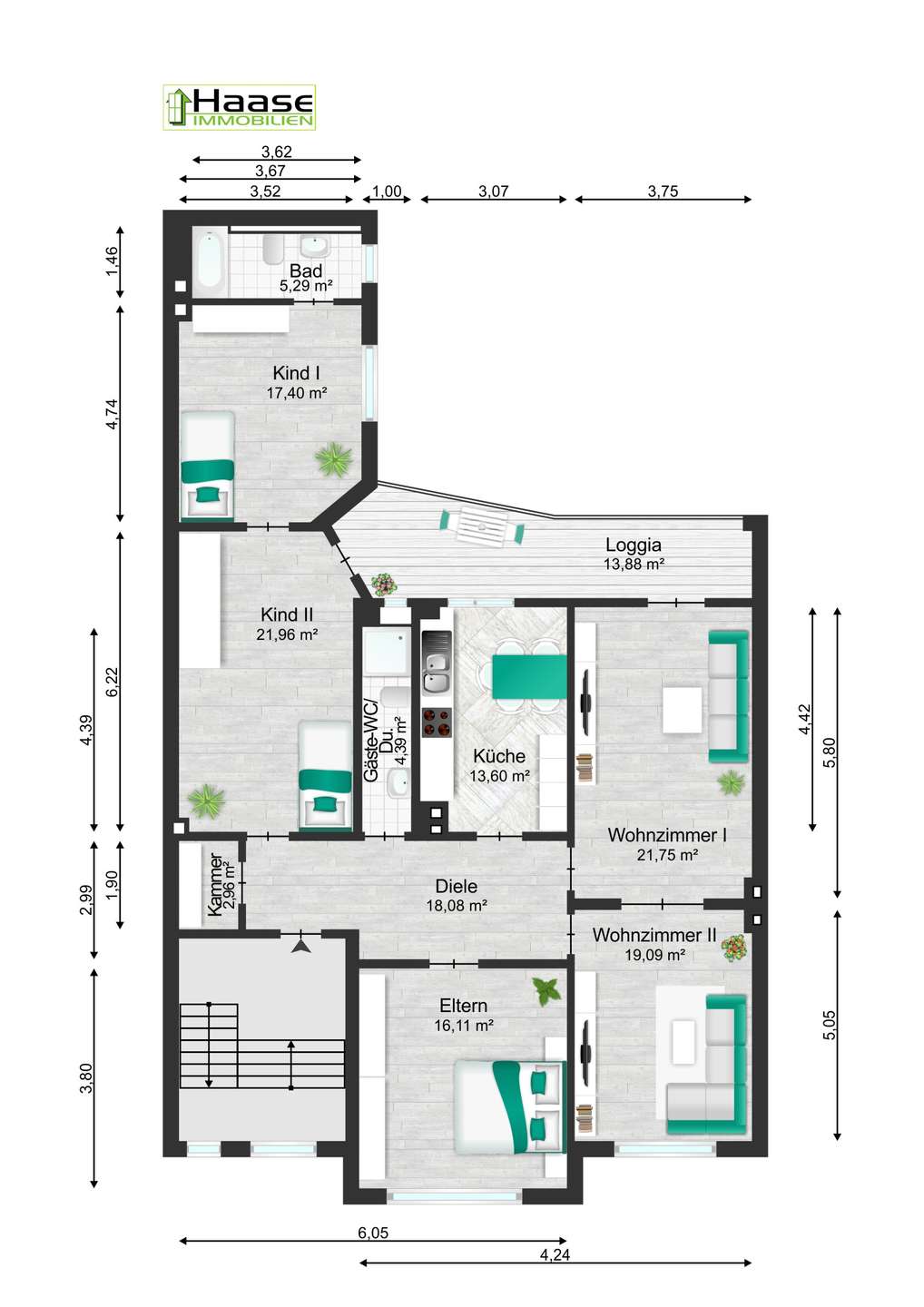
Die Wohnung bietet ca. 147,55 m² Wohnfläche und umfasst fünf Zimmer. Der aktuelle Grundriss sieht drei Schlafzimmer sowie einen großzügigen Wohn- und Essbereich vor. Ergänzt wird das Raumangebot durch eine große Loggia.
Zudem verfügt die Wohnung über zwei Badezimmer, bestehend aus einem Wannenbad sowie einem separaten Duschbad.
In der gesamten Wohnung ist klassisches Stäbchenparkett verlegt. Dieses wird nach dem Auszug der aktuellen Mieter vollständig abgeschliffen und aufgearbeitet. Die Gasetagen-Heizung ist aus 2008.
Aus Rücksicht auf die Privatsphäre der derzeitigen Mieter können aktuell keine Innenfotos veröffentlicht werden. Wir stellen Ihnen daher einen Grundriss sowie Außenaufnahmen des Hauses zur Verfügung und bitten hierfür um Verständnis.
Besichtigungen sind nach individueller Terminvereinbarung möglich.
Die Wohnung wird zum 01.07. bezugsfrei und eine neuer Mietvertrag wird indexiert.
ENERGIEAUSWEIS:
